Одиноцво, Минское ш., 10 км от МКАД, поселок Довиль
Стоимость
По запросу
Потенциальный доход в месяц
по запросу
Предложить цену
pуб
Отправить
Финансовые показатели
-
Текущая доходность10%
-
Доход в месяцпо запросу
-
Окупаемость10 лет
-
Арендаторпо запросу ...
Основные характеристики
-
Тип
-
Площадь4 000.00 кв. м.
-
Область
-
От МКАД10.61
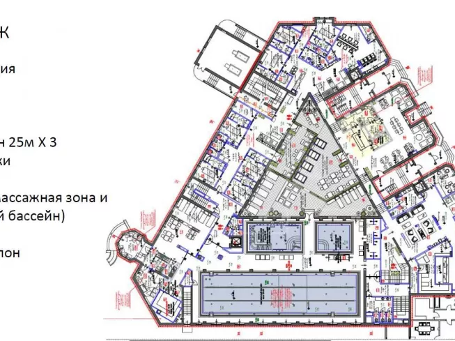
ОПИСАНИЕ
Довиль - элитный коттеджный поселок клубного типа с атмосферой фешенебельного французского курорта в сочетании с красотами природы Подмосковья. Здание раположено, внутри элитного коттеджного поселка «Довиль» общей площадью 4 000 кв. м.
ЗАЯВКА НА ПОДБОР
ИНВЕСТИЦИОННОГО
ОБЪЕКТА
ИНВЕСТИЦИОННОГО
ОБЪЕКТА

Обзор актуальных объектов инвестиционной недвижимости
Фото, планировки и характеристики. Лучшие
предложения с гарантированной доходностью.
предложения с гарантированной доходностью.