Москва, Бол. Серпуховская, 8/7, стр. 2
Помещение с арендаторами Шаурма, Табак, Авиакассы
Стоимость
120 000 000 pуб
Фактический доход в месяц
850 000 pуб
Предложить цену
pуб
Отправить
Прогнозируемые финансовые показатели
-
Текущая доходность8.5%
-
Доход в месяц850 000 руб.
-
Окупаемость12 лет
-
АрендаторШаурма, Табак, Авиакассы ...
Основные характеристики
-
Тип
-
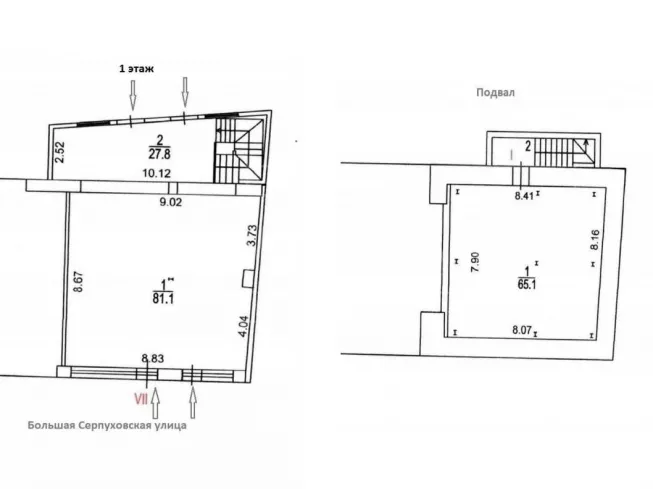
Площадь181.80 кв. м.
-
Округ
-
Метро
ОПИСАНИЕ
Продажа помещения с арендатором по адресу ул. Большая Серпуховская, дом 8/7 стр. 2. - Арендатор: пиццерия; - Первая линия домов; - 2 отдельных входа с фасада и 2 со двора; - все коммуникации.
ЗАЯВКА НА ПОДБОР
ИНВЕСТИЦИОННОГО
ОБЪЕКТА
ИНВЕСТИЦИОННОГО
ОБЪЕКТА

Обзор актуальных объектов инвестиционной недвижимости
Фото, планировки и характеристики. Лучшие
предложения с гарантированной доходностью.
предложения с гарантированной доходностью.