Московская обл., с. Булатниково, Центральная, 1, стр. 1
Стоимость
По запросу
Потенциальный доход в месяц
по запросу
Предложить цену
pуб
Отправить
Финансовые показатели
-
Текущая доходность10%
-
Доход в месяцпо запросу
-
Окупаемость10 лет
-
Арендаторпо запросу ...
Основные характеристики
-
Тип
-
Площадь22 200.00 кв. м.
-
Область
-
От МКАД0.58
ОПИСАНИЕ
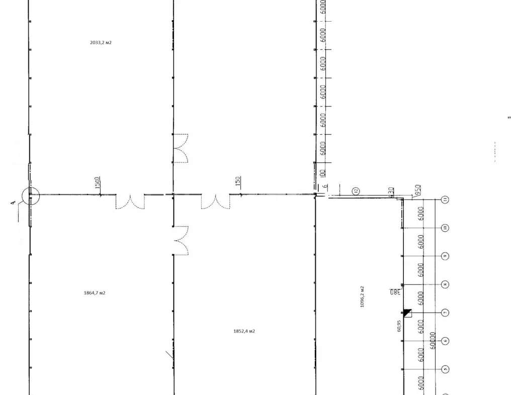
Предлагается на продажу складской комплекс категории B - 22 200 кв.м Складская площадь 16 000 кв.м, офисная часть 5 500 кв.м., вспомогательные помещения 700 кв.м Площадь земельного участка 4,7 ГА Ограничения отсутствуют. Объект находится на юге Московской области, Булатниково, М-4 дон шоссе, в 1 км от МКАД. Продажа складского комплекса частями не предполагается ТУ, коммуникации и безопасность: 800кВт, ГАЗ, канализация, пожарная сигнализация, дымоудаление, видеонаблюдение, охранная сигнализация, контроль доступа на территорию, и интернет
ЗАЯВКА НА ПОДБОР
ИНВЕСТИЦИОННОГО
ОБЪЕКТА
ИНВЕСТИЦИОННОГО
ОБЪЕКТА

Обзор актуальных объектов инвестиционной недвижимости
Фото, планировки и характеристики. Лучшие
предложения с гарантированной доходностью.
предложения с гарантированной доходностью.