ID: r162235

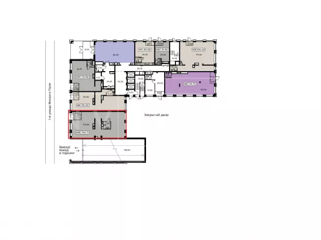
1-я Ямского Поля, 28, стр. 3
Помещение 134,71 кв. м

ПРОДАНО
Стоимость

66 535 455 pуб

Потенциальный доход в месяц

554 462 pуб

Предложить цену
Прогнозируемые финансовые показатели
  • Текущая доходность
    10%
  • Доход в месяц
    554 462 руб.
  • Окупаемость
    10 лет
  • Арендатор
    по запросу ...
Основные характеристики
ОПИСАНИЕ

Продаётся помещение в ЖК "Glorax Aura". Отличная транспортная доступность до центра города. Пешая доступность до станции метро "Белорусская". В окружении несколько премиальных жилых комплексов, гостиница, развлекательный клуб. При этом торговой и сервисной инфраструктуры в ближайшем окружении недостаточно.

Получить презентацию
Введите имя
Введите телефон
Введите e-mail
Нужно подтвердить
Скачивание сейчас начнется
Получить консультацию
Введите имя
Введите e-mail
Введите телефон
Нужно подтвердить
Свяжемся с Вами в течение 30 минут
АНАЛОГИЧНЫЕ ПРЕДЛОЖЕНИЯ
ЗАЯВКА НА ПОДБОР
ИНВЕСТИЦИОННОГО
ОБЪЕКТА
Заполните форму
обратной связи
и получите консультацию
Введите имя
Введите e-mail
Введите телефон
Нужно подтвердить
Свяжемся с Вами в течение 30 минут
Обзор актуальных объектов инвестиционной недвижимости
Фото, планировки и характеристики. Лучшие
предложения с гарантированной доходностью.
wa tg