ID: r163806

Москва, 2-я Владимирская, 38/18

ПРОДАНО
Стоимость

59 400 000 pуб

Фактический доход в месяц

450 000 pуб

Предложить цену
Прогнозируемые финансовые показатели
  • Текущая доходность
    9.09%
  • Доход в месяц
    450 000 руб.
  • Окупаемость
    11 лет
  • Арендатор
    по запросу ...
Основные характеристики
ОПИСАНИЕ

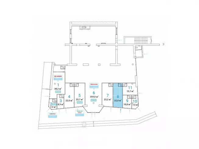
Предлагается на продажу помещение на улице 2-я Владимирская, ВАО г. Москвы. Шаговая доступность от станции метро "Перово" - менее 1 минуты пешком. Отличная пешеходная и транспортная доступность. Помещения расположены в крупном сложившемся жилом районе с высокой плотностью застройки и развитой инфраструктурой. В окружении находятся бизнес-центры "Зелёный, 20", "Перовский", "Сударыня", а также аквапарк "Карибия" и "Финансовый университет при Правительстве России".

Получить презентацию
Введите имя
Введите телефон
Введите e-mail
Нужно подтвердить
Скачивание сейчас начнется
Получить консультацию
Введите имя
Введите e-mail
Введите телефон
Нужно подтвердить
Свяжемся с Вами в течение 30 минут
АНАЛОГИЧНЫЕ ПРЕДЛОЖЕНИЯ
ЗАЯВКА НА ПОДБОР
ИНВЕСТИЦИОННОГО
ОБЪЕКТА
Заполните форму
обратной связи
и получите консультацию
Введите имя
Введите e-mail
Введите телефон
Нужно подтвердить
Свяжемся с Вами в течение 30 минут
Обзор актуальных объектов инвестиционной недвижимости
Фото, планировки и характеристики. Лучшие
предложения с гарантированной доходностью.
wa tg