Москва, Стромынка, 19, кор.1
Помещение с арендатором Химчистка
Стоимость
45 000 000 pуб
Фактический доход в месяц
350 000 pуб
Предложить цену
pуб
Отправить
Прогнозируемые финансовые показатели
-
Текущая доходность9.33%
-
Доход в месяц350 000 руб.
-
Окупаемость11 лет
-
АрендаторХимчистка ...
Основные характеристики
-
Тип
-
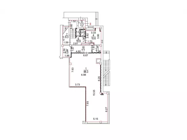
Площадь136.70 кв. м.
-
Округ
-
Метро
ОПИСАНИЕ
Торговое помещение на 1 этаже отдельно стоящего здания. Отдельный вход с фасада, открытая планировка. Есть возможность установки вывески. Парковка перед входом. Расположено в окружении густонаселенного спального жилого массива. Первая линия домов. Отличная визуализация. Пешая доступность до метро
ЗАЯВКА НА ПОДБОР
ИНВЕСТИЦИОННОГО
ОБЪЕКТА
ИНВЕСТИЦИОННОГО
ОБЪЕКТА

Обзор актуальных объектов инвестиционной недвижимости
Фото, планировки и характеристики. Лучшие
предложения с гарантированной доходностью.
предложения с гарантированной доходностью.