ID: r164711

Москва, Звенигородское ш., 7
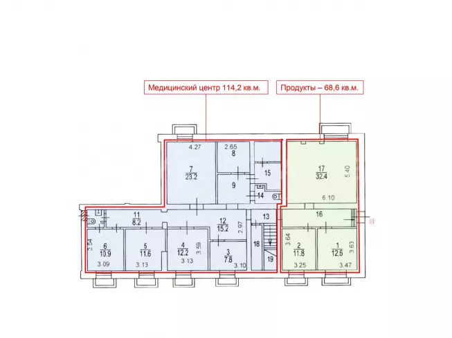
Помещение с арендаторами Продукты, Медицинский центр

ПРОДАНО
Стоимость

58 000 000 pуб

Фактический доход в месяц

480 000 pуб

Предложить цену
Прогнозируемые финансовые показатели
  • Текущая доходность
    9.93%
  • Доход в месяц
    480 000 руб.
  • Окупаемость
    10 лет
  • Арендатор
    Продукты, Медицинский центр ...
Основные характеристики
ОПИСАНИЕ

Предлагается на продажу готовый арендный бизнес на первой линии Звенигородского шоссе. Арендаторы: Медицинский центр, продукты. Шаговая доступность от станции метро "Улица 1905 года". Выгодная локация - пешеходный и автомобильный трафик делают помещение максимально рентабельным. Напротив помещения остановка общественного транспорта.

Получить презентацию
Введите имя
Введите телефон
Введите e-mail
Нужно подтвердить
Скачивание сейчас начнется
Получить консультацию
Введите имя
Введите e-mail
Введите телефон
Нужно подтвердить
Свяжемся с Вами в течение 30 минут
АНАЛОГИЧНЫЕ ПРЕДЛОЖЕНИЯ
ЗАЯВКА НА ПОДБОР
ИНВЕСТИЦИОННОГО
ОБЪЕКТА
Заполните форму
обратной связи
и получите консультацию
Введите имя
Введите e-mail
Введите телефон
Нужно подтвердить
Свяжемся с Вами в течение 30 минут
Обзор актуальных объектов инвестиционной недвижимости
Фото, планировки и характеристики. Лучшие
предложения с гарантированной доходностью.
wa tg