Москва, Огородный пр-д, 16
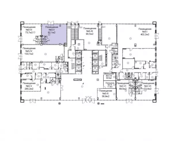
Помещение 92,10 кв. м
Стоимость
54 245 999 pуб
Потенциальный доход в месяц
452 050 pуб
Предложить цену
pуб
Отправить
Прогнозируемые финансовые показатели
-
Текущая доходность10%
-
Доход в месяц452 050 руб.
-
Окупаемость10 лет
-
Арендаторпо запросу ...
Основные характеристики
-
Тип
-
Площадь92.10 кв. м.
-
Округ
-
Метропо запросу
ОПИСАНИЕ
Продаётся помещение в БК "Останкино". Благодаря продуманной инфраструктуре, бизнес-парк будет постоянным центром притяжения и активной жизни как для сотрудников комплекса, так и для его гостей. Шаговая доступность от метро «Бутырская», На личном транспорте до ТТК 5 минут. Наземная парковка 500 м/м.
ЗАЯВКА НА ПОДБОР
ИНВЕСТИЦИОННОГО
ОБЪЕКТА
ИНВЕСТИЦИОННОГО
ОБЪЕКТА

Обзор актуальных объектов инвестиционной недвижимости
Фото, планировки и характеристики. Лучшие
предложения с гарантированной доходностью.
предложения с гарантированной доходностью.