ID: r161284

Москва, Электродный пр-д, 16, стр. 1
Помещение с арендаторами Кафе,аптека,фотосалон, юр.центр

ПРОДАНО
Стоимость

340 000 000 pуб

Фактический доход в месяц

1 400 000 pуб

Предложить цену
Прогнозируемые финансовые показатели
  • Текущая доходность
    4.94%
  • Доход в месяц
    1 400 000 руб.
  • Окупаемость
    20 лет
  • Арендатор
    Кафе,аптека,фотосалон, юр.центр ...
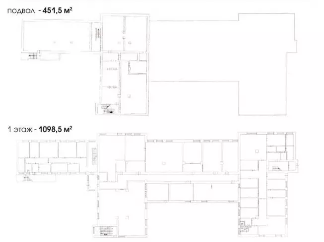
Основные характеристики
ОПИСАНИЕ

Предлагается на продажу Офисно-гостиничный центр у первой линии домов,150метров от м. Шоссе Энтузиастов. Месторасположение в районе высокой деловой активности, развитая инфраструктура. Удобная транспортная доступность. Собственная парковка. Арендаторы: кафе,аптека,фотосалон, юр.центр и др.

Получить презентацию
Введите имя
Введите телефон
Введите e-mail
Нужно подтвердить
Скачивание сейчас начнется
Получить консультацию
Введите имя
Введите e-mail
Введите телефон
Нужно подтвердить
Свяжемся с Вами в течение 30 минут
АНАЛОГИЧНЫЕ ПРЕДЛОЖЕНИЯ
ЗАЯВКА НА ПОДБОР
ИНВЕСТИЦИОННОГО
ОБЪЕКТА
Заполните форму
обратной связи
и получите консультацию
Введите имя
Введите e-mail
Введите телефон
Нужно подтвердить
Свяжемся с Вами в течение 30 минут
Обзор актуальных объектов инвестиционной недвижимости
Фото, планировки и характеристики. Лучшие
предложения с гарантированной доходностью.
wa tg