ID: r162165

Москва, Огородный пр-д, 16
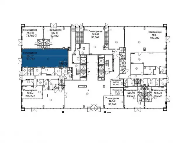
Помещение 133,70 кв. м

ПРОДАНО
Стоимость

76 208 998 pуб

Потенциальный доход в месяц

635 075 pуб

Предложить цену
Прогнозируемые финансовые показатели
  • Текущая доходность
    10%
  • Доход в месяц
    635 075 руб.
  • Окупаемость
    10 лет
  • Арендатор
    по запросу ...
Основные характеристики
ОПИСАНИЕ

Продаётся помещение в БК "Останкино". Благодаря продуманной инфраструктуре, бизнес-парк будет постоянным центром притяжения и активной жизни как для сотрудников комплекса, так и для его гостей. Шаговая доступность до ст.м. «Бутырская» (100 м), До платформы «Останкино» (МЦД-3) (100 м). На личном транспорте до ТТК 5 минут. Плоскостная парковка 500 м/м.

Получить презентацию
Введите имя
Введите телефон
Введите e-mail
Нужно подтвердить
Скачивание сейчас начнется
Получить консультацию
Введите имя
Введите e-mail
Введите телефон
Нужно подтвердить
Свяжемся с Вами в течение 30 минут
АНАЛОГИЧНЫЕ ПРЕДЛОЖЕНИЯ
ЗАЯВКА НА ПОДБОР
ИНВЕСТИЦИОННОГО
ОБЪЕКТА
Заполните форму
обратной связи
и получите консультацию
Введите имя
Введите e-mail
Введите телефон
Нужно подтвердить
Свяжемся с Вами в течение 30 минут
Обзор актуальных объектов инвестиционной недвижимости
Фото, планировки и характеристики. Лучшие
предложения с гарантированной доходностью.
wa tg