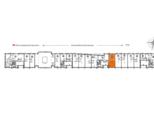
Москва, Автомобильный пр-д, 4
Помещение 127,19 кв. м 
                             
                                Стоимость
                                                                            74 830 991 pуб
Потенциальный доход в месяц
                                                                                                                623 592 pуб
Предложить цену
                                
                                
                                    
                                    
                                    pуб
                                
                                Отправить
                                    
                                
                                
                            Прогнозируемые финансовые показатели
                                            - 
                                                    Текущая доходность10%
- 
                                                    Доход в месяц623 592 руб.
- 
                                                    Окупаемость10 лет
- 
                                                    Арендаторпо запросу ...
Основные характеристики
                                            - 
                                                    Тип
- 
                                                    Площадь127.19 кв. м.
- 
                                                    Округ
- 
                                                    Метропо запросу
ОПИСАНИЕ
                                    Продается помещение в Апарт-комплексе "N’ice Loft". Помещение свободного назначения для коммерческого использования, расположенное на 1-й линии домов по Автомобильному проезду. Высокие потолки - возможность обустройства антресоли. Витринные окна. Центральные коммуникации (ГВС/ХВС, канализация, отопление). Масштаб комплекса N`ICE LOFT (2 240 апартаментов) и 5 000 жителей.
ЗАЯВКА НА ПОДБОР
ИНВЕСТИЦИОННОГО
ОБЪЕКТА
                ИНВЕСТИЦИОННОГО
ОБЪЕКТА
 
            Обзор актуальных объектов инвестиционной недвижимости
                Фото, планировки и характеристики. Лучшие
предложения с гарантированной доходностью.
                
            предложения с гарантированной доходностью.
 
                                             
                                             
                                             
                                             
                                                                                     
                                                                                     
                                                                                     
                                     
                                     
                                     
                                         
                                        