ID: r162090

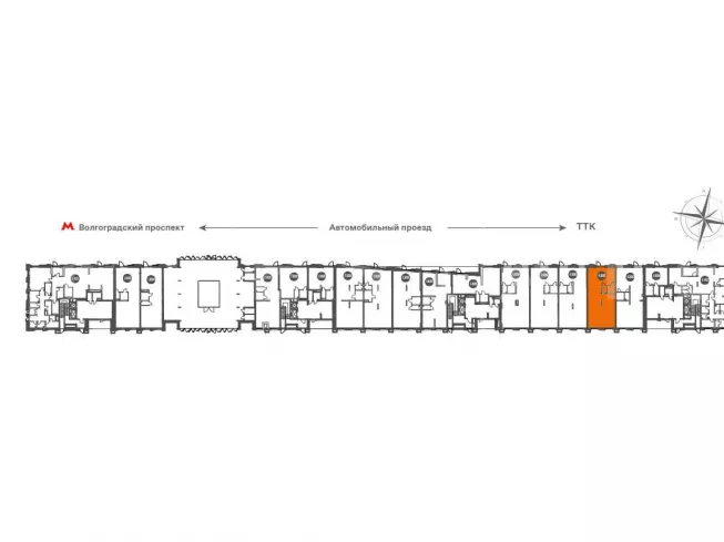
Москва, Автомобильный пр-д, 4
Помещение 128,32 кв. м

ПРОДАНО
Стоимость

75 062 199 pуб

Потенциальный доход в месяц

625 518 pуб

Предложить цену
Прогнозируемые финансовые показатели
  • Текущая доходность
    10%
  • Доход в месяц
    625 518 руб.
  • Окупаемость
    10 лет
  • Арендатор
    по запросу ...
Основные характеристики
ОПИСАНИЕ

Продается помещение в Апарт-комплексе "N’ice Loft". Помещение свободного назначения для коммерческого использования, расположенное на 1-й линии домов по Автомобильному проезду. Высокие потолки - возможность обустройства антресоли. Витринные окна. Центральные коммуникации (ГВС/ХВС, канализация, отопление). Масштаб комплекса N`ICE LOFT (2 240 апартаментов) и 5 000 жителей.

Получить презентацию
Введите имя
Введите телефон
Введите e-mail
Нужно подтвердить
Скачивание сейчас начнется
Получить консультацию
Введите имя
Введите e-mail
Введите телефон
Нужно подтвердить
Свяжемся с Вами в течение 30 минут
АНАЛОГИЧНЫЕ ПРЕДЛОЖЕНИЯ
ЗАЯВКА НА ПОДБОР
ИНВЕСТИЦИОННОГО
ОБЪЕКТА
Заполните форму
обратной связи
и получите консультацию
Введите имя
Введите e-mail
Введите телефон
Нужно подтвердить
Свяжемся с Вами в течение 30 минут
Обзор актуальных объектов инвестиционной недвижимости
Фото, планировки и характеристики. Лучшие
предложения с гарантированной доходностью.
wa tg