Москва, Огородный пр-д, 16
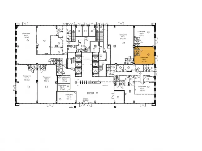
Помещение 62,60 кв. м
Стоимость
38 811 999 pуб
Потенциальный доход в месяц
323 433 pуб
Предложить цену
pуб
Отправить
Прогнозируемые финансовые показатели
-
Текущая доходность10%
-
Доход в месяц323 433 руб.
-
Окупаемость10 лет
-
Арендаторпо запросу ...
Основные характеристики
-
Тип
-
Площадь62.60 кв. м.
-
Округ
-
Метропо запросу
ОПИСАНИЕ
Продаётся помещение в БК "Останкино". Благодаря продуманной инфраструктуре, бизнес-парк будет постоянным центром притяжения и активной жизни как для сотрудников комплекса, так и для его гостей. Шаговая доступность до ст.м. «Бутырская» (100 м), До платформы «Останкино» (МЦД-3) (100 м). На личном транспорте до ТТК 5 минут. Плоскостная парковка 500 м/м.
ЗАЯВКА НА ПОДБОР
ИНВЕСТИЦИОННОГО
ОБЪЕКТА
ИНВЕСТИЦИОННОГО
ОБЪЕКТА

Обзор актуальных объектов инвестиционной недвижимости
Фото, планировки и характеристики. Лучшие
предложения с гарантированной доходностью.
предложения с гарантированной доходностью.